Westerwischloop – Ein neuer Stadtteil zwischen Landschaft, Gemeinschaft und moderner Mobilität
Der geplante Stadtteil Westerwischloop in Cuxhaven verbindet städtebauliche Klarheit mit einer naturnahen Freiraumgestaltung und einem zukunftsweisenden Mobilitätskonzept. Das Quartier setzt bewusst auf die Verzahnung von Wohnen, Grünräumen und nachhaltiger Infrastruktur, um ein lebendiges, klimagerechtes und sozial vielfältiges Umfeld zu schaffen. Durch die Kombination aus drei charakteristischen Nachbarschaften, weitläufigen Freiräumen und einem autoarmen Erschließungssystem entsteht ein Wohngebiet, das sowohl funktional als auch atmosphärisch auf die Bedürfnisse seiner zukünftigen Bewohnerinnen und Bewohner reagiert.
Name
Quartier südlich Westerwischstrom
Partner
Herz Architekten
Platzierung
2. Preis
Leistung
Freianlagenplanung, Landschaftsgestaltung
Ort
Cuxhaven, Deutschland
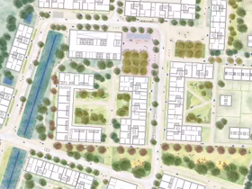
Städtebau: Aufbau eines vernetzten Quartiers
Der neue Stadtteil Westerwischloop basiert auf drei eigenständigen Nachbarschaften, die als grüne Inseln ausgebildet und über einen ringförmigen Erschließungsraum miteinander verbunden sind. Im Zentrum jeder Nachbarschaft liegt ein eigener Platz, der durch markante Gebäude und klare Raumkanten gefasst wird. Während die Bebauung in den Quartierszentren eine höhere Dichte aufweist, öffnen sich die Strukturen zum Rand hin und passen sich dem kleinteiligen Umfeld an. So entsteht ein Übergang von urbanen Bereichen zu landschaftlich geprägten Räumen.
Das Quartier setzt seinen Schwerpunkt auf Wohnen und bietet vielfältige Wohnformen, die unterschiedliche Lebensmodelle berücksichtigen. Ergänzend entsteht am südwestlichen Rand eine Kita, deren Gebäudeform einen geschützten Außenbereich schafft und zugleich als Puffer zur Straße wirkt. In den Nachbarschaftszentren werden Mobility Hubs integriert, die multimodale Mobilität fördern.

Mobilität: Autoarm und grün organisiert
Das Mobilitätskonzept verfolgt konsequent die Idee eines autoarmen Quartiers. Die interne Erschließung erfolgt über einen Ring, während innerhalb der Nachbarschaften grüne, verkehrsberuhigte Wege dominieren.
Eine Bushaltestelle an der Theodor-Heuss-Allee verbindet den Stadtteil mit dem öffentlichen Nahverkehr.
Eine sogenannte Flexzone im Straßenraum kombiniert Grünflächen, Aufenthaltsbereiche, Fahrradabstellplätze und Mobilitätsangebote.
Der ruhende Verkehr konzentriert sich auf vier Mobility Hubs sowie zwei Tiefgaragen; zusätzliche Carsharing-Stellplätze ergänzen das Angebot.
Die Architekturtypologien des Quartiers reichen von urbanen, aufgelockerten Blockrandstrukturen in den Zentren bis hin zu Zeilenbauten und Einfamilienhäusern an den Rändern. Durch ein Hochparterre und vorgelagerte Pufferzonen wie Vorgärten oder Terrassen wird im Erdgeschoss eine klare Trennung zwischen öffentlichem und privatem Raum geschaffen.
Raum für Bewegung & Entspannung
Die Gestaltung der Außenanlagen ist geprägt von einer sorgfältigen Integration verschiedener Sportflächen, die Raum für vielfältige Aktivitäten bieten. Von Kugelstoßen bis Beachvolleyball sollen die Freiflächen einladende Orte für Bewegung und Gemeinschaft sein.
Unter den majestätischen Bäumen, die das Gelände umgeben, entstehen offene Räume, die zum Verweilen und Entspannen einladen und zugleich den Charakter des Standorts bewahren.

Freiräume: Verzahnung von Landschaft, Klimaresilienz und Gemeinschaft
Das Freiraumkonzept setzt auf eine starke Verbindung von blau-grüner Infrastruktur und sozialer Interaktion. Besonderen Wert legt es auf den Umgang mit den Herausforderungen der Küstennähe wie Starkregen oder Hitze.
Zentraler Bestandteil ist ein geschwungener Loop, der als landschaftlich geformte Haupterschließung alle Teilbereiche verbindet. Ergänzt wird dieser durch zwei Promenaden: eine urbane Variante durch die Quartiersplätze und eine landschaftliche entlang des Grünzugs im Osten und Süden.

Die Plätze im Quartier verfügen über individuelle Charaktere. Städtische Quartiersplätze dienen als lebendige Orte für Alltag, Gastronomie und Mobilität, während grüne Nachbarschaftsplätze naturnahe Aufenthaltsqualitäten, gute Mikroklimata und soziale Treffpunkte bieten.
Wasser spielt dabei eine zentrale Rolle: Das vorhandene Grabensystem bleibt erhalten und wird in ein umfassendes Retentions- und Schwammstadtkonzept eingebettet.
Jeder Baublock erhält eigene Versickerungs- und Retentionsräume, während ein Wasserpark auf Quartiersebene zusätzlich Erholung ermöglicht.
Wohnungsnahe Grünräume und nachhaltige Gestaltung
Ein engmaschiges Netz an wohnungsnahen Grün- und Freiräumen sorgt für hohe Aufenthaltsqualität und vielfältige Nutzungsmöglichkeiten für alle Generationen. Spiel-, Bewegungs- und Gemeinschaftsflächen sind niedrigschwellig erreichbar und fördern soziale Interaktion sowie urbanes Gärtnern. Durchgehende Grünverbindungen ermöglichen kurze Wege zu Erholungsbereichen und schaffen zugleich identitätsstiftende Räume.
Nachhaltigkeit und Resilienz stehen im Fokus der Freiraumgestaltung: robuste, standortgerechte Pflanzenarten, klimaresiliente Baumstrukturen und der Einsatz naturnaher Materialien sichern eine pflegeleichte und ökologische Entwicklung des Quartiers.
Bildnachweis
Lagepläne: ensphere GmbH
Perspektive, Axonometrie: Herz Architekten
